RVP Future Engagement

RVP Future Engagement

There is no firm plan yet in place for alternative space for the Camden Centre.  Initial consultation plans have alluded to the facility being wedged into one of the former café’s in the old food court of the RVP. 

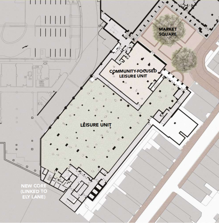
A revised plan has now made note of a "Community Focussed Leisure Unit" which, whilst not formally proposed to be the alternative for the Camden Centre is wholly inappropriate to service the needs of users and hirers who rely on the facilities offered by the Camden Centre.  This space is significantly smaller and peppered with pillars supporting the structure above.

This area will be turned into a basement (a concrete slab will be installed above) and the space shared.  This outline proposal – whilst not final – is totally unsuitable.

We will be calling on both Rivington Hark and TWBC in the near future to clarify exactly what their intentions are for this "Community Focussed Leisure Unit" and urge all concerned residents to do the same via contacts on the following pages: https://socc.group/royal-victoria-place-rvp-future-plans and https://socc.group/tunbridge-wells-borough-council-twbc-contacts

Check back here to find out more and get involved here.